2021.02.19
リノベーション施工事例
リノベーション施工事例 vol.215❀光あふれるヴィンテージ空間❀
こんにちは🙋
三寒四温の日々が続いておりますが
皆さまいかがお過ごしでしょうか☀
早くも都内では花粉が飛び始め、
花粉症の方には辛い毎日です…💦
ではリノベーション物件のご紹介です!
本日ご紹介する物件は、
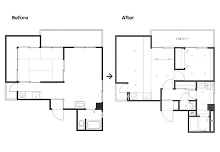
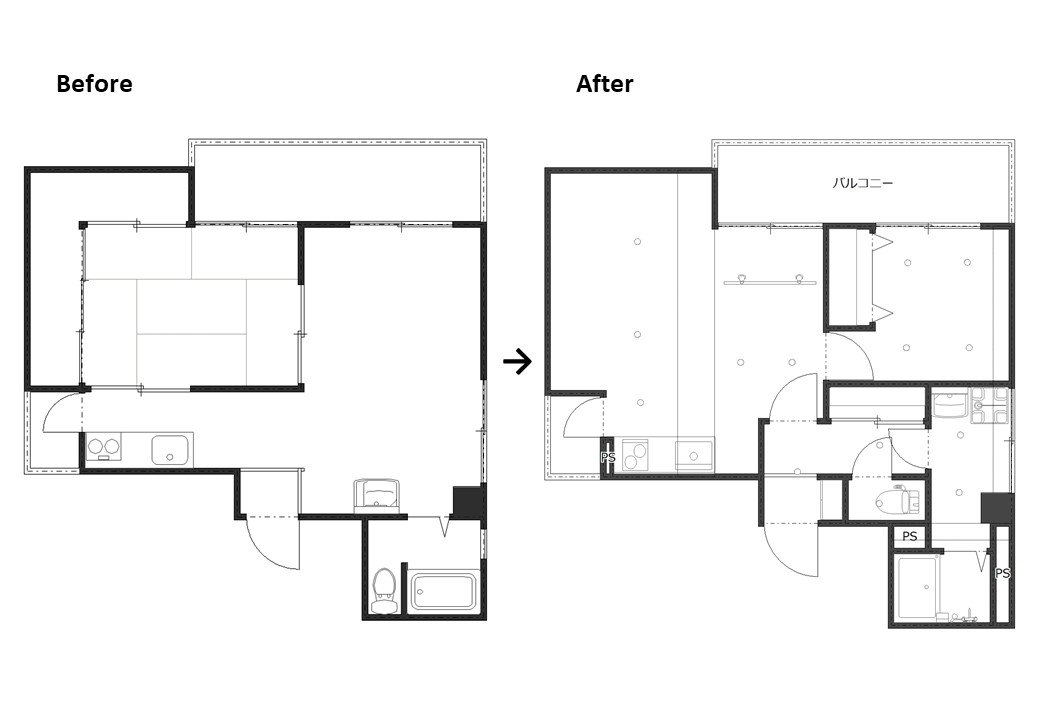
東京都目黒区にある築47年のマンションの一室で
間取りは1LDKで33㎡です。
それでは玄関から見ていきましょう(*’▽’)
Before..
玄関を開けるとすぐ室内が見渡せます💦
プライバシーも考えLDKとの間仕切りはほしいところです(._.)
窓付きの黒い扉を開けると居室へ、
隣の白い引き戸は収納になっています◎
玄関土間の大きさはそのままに、右側に収納もできました👞
ヴィンテージ感のあるチャコールブラックが空間を引き締めてくれます😎
次に洋室です。
Before..
全体的にどんよりとした雰囲気です☁
カーペットは薄汚れ、壁の一部は腐食してしまっています😩
広々としたスペースなのでその空間をどう利用するか考えました💡
After
そして和室です。
Before..
壁に沿ってL字に収納がありますが屋根の斜面、
柱と大きな梁もある為、使い勝手があまり良くない状況でした😖
After
和室を洋室へ変更、収納は撤去し広めのLDKとなりました👏
梁には壁と同じアクセントクロスです(*^^*)
筋やひび割れを残したデザインなのでリアルな木を表現できます◎
次に反対側から見た和室です。
Before..
窓面が大きいだけあって和室なのが勿体ない気がします😔
日当たりも良好なお部屋です◎
襖は穴が開いてボロボロな状態でした…。
After
右側の壁を壊しキッチンまでオープンなLDKへ変更しました(*^-^*)
理想的なLDKの広さです◎
2枚の窓付き扉とキッチンの黒がアクセントとして
お部屋を引き立ててくれています🚩
それではキッチンです。
Before..
黄色いタイル、換気扇の青が絶妙な古臭さを漂わせています…
質素な吊り棚が何とも言えません(>_<)
できればコンロも付いていてほしいですね🙏
After
キッチン全て交換になりました🎊
黄色のタイルは白いキッチンパネルへ、
青い換気扇はスタイリッシュなものへと進化しました(笑)
天井に大きな梁があるため吊戸棚はありませんが、
壁付けの棚を設置しました◎
次にお風呂です。
Before..
緑のタイルがうーん…という印象です😔
このお風呂、脱衣所はなく扉を開けすぐに
浴槽があるタイプのものでした。また、壁をはさんで隣が
トイレになっており使い勝手はあまり良くはない状況でした(:_;)
After
ユニットバスへ交換となりました!🛀
黒いアクセントパネルにシルバーの水栓でぴかぴかです✨
横長の大きなミラーは小さな空間でも広くみせてくれます◎
最後にトイレです。
Before..
お風呂同様緑色に囲まれています(~_~)
横幅が狭い上に配管がむき出しなので圧迫感が
増してしまいます👉👈
After
個室ができました😊ウォシュレット付きのトイレです。
場所も変わり玄関入りすぐの位置になったのでとても便利です👌
バス・トイレ別は賃貸募集としては大切なポイントですね◎
今回の工事は大きく間取り変更を行いました。
窓サッシも全て交換しているのでフルリノベーションです💫
和室→全て解体し大きなLDKへ。
キッチン→交換
お風呂→ユニットバスへ
トイレ→位置を移動し個室へ。
洗面→脱衣所を作り洗濯パンと同じ空間へ。
また、大きな工事であったためイメージが沸きやすい様、
オーナー様へご提案の際に3Dパースを作成いたしました🏡
窓側から見たLDKです。

















